美国尓湾地区今年最受瞩目的项目——大公园社区里的Cadence Park开盘销售,我们受邀考察了该楼盘,为大家带来首要手资讯!
公共社区
作为只此位于橙郡Great Park大公园内部的全新社区,Cadence Park的住户推开门即是郁郁葱葱的天然氧吧,且随时随地享受大公园的体育场、自行车道、游泳池、农夫集市和游乐设施。
橙郡Great Park坐落于南加州,占地面积超过526万平方米,是纽约中央公园的两倍,全部建成后将是全美国规模较大的城市综合体,也是21世纪全球较大的城市公园系统。
2017年8月5日,大公园体育场一期工程对外开放,内含5个沙滩球场、6个足球场、25个网球场和一座拥有2,506个观众席的体育场,更有孩子们最喜欢的热气球、旋转木马、棕榈艺术中心、农场和食物示范园、农夫市场和野餐区等。
(点击图片,加入海房交流群)
子楼盘
Cadence Park 总计分为8个子楼盘,分别是
Adagio,康斗,3-4房,90万起
Canrara,康斗,3-4房,130万起
Capella,独立屋,4-5房,160万起
Crescendo,独立屋,4-5房,180万起
Encore,康斗,4房,120万起
Chorus,叠层康斗,2-3房,60万起
Marcato,独立屋,4房,140万起
Seranade,独立屋,4-5房,140万起
今天我们着重来介绍下Capella,Crescendo,Marcato和Serenade。
每个楼盘共有三种户型,每个户型又提供了三种不同的外立面风格,各有特色,可以满足不同买家的喜好。
Capella
(点击图片,加入海房交流群)
Capella是建商Lennar在Cadence Park所承建的8个楼盘之一,该楼盘将建造72栋2层独栋别墅,平均面积是整个小区第二大的,仅次于Crescendo,售价160万起。
在室内外装潢及升级配套方面,Capella楼盘全部采用建商Lennar独具特色的“Everything’s included”(“一应俱全家具配套”)模式,全部升级配套总价值超过13万美金。
除了配备有标准的Wi-Fi认证家居(即家中无信号盲区)及全智能家居外,Capella楼盘还特别在厨房部分升级了有名厨具品牌Wolf的全套厨具。
Capella楼盘位于Cadence Park社区的西北角,紧邻社区内的健行步道,该步道设计通向大公园的各项体育及娱乐设施,对喜爱户外活动的买家来说非常便利。
目前,该楼盘销售已进入第二期,所放出的位置均临近社区公园,价格优,位置佳,有意向的买家应及早准备,抓住机会。
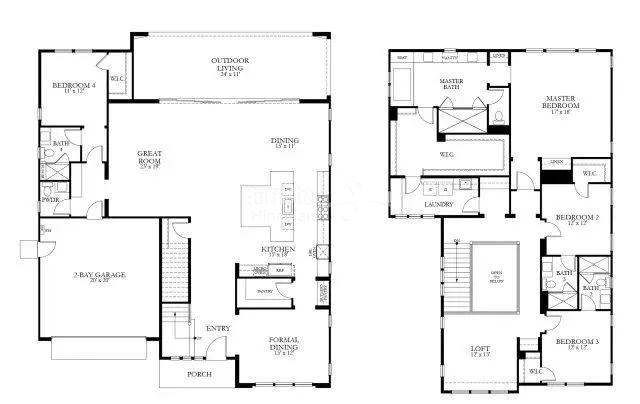
户型一:
4房4.5卫、室内3740平方尺、2车库
(点击图片,加入海房交流群)
一号户型布局实用且有独特设计特色,一楼门厅处挑高,超长的落地玻璃门将室内外连通,使整个客厅显得非常通透与开阔。
厨房搭配了时下较流行的超大岛台,岛台内设有充足的储物空间,既美观又增强了整个厨房的实用性。
此户型的另一大亮点是在一楼进门处设计了一间与厨房相通的Formal Dining Room(正式餐厅),将整栋房子的豪华感又提升了一个档次。同时,屋主也可将此房间改为书房或活动房使用。
一号户型的每个房间都配有专属的浴室和衣帽间,从而确保了每位家庭成员都拥有独立私密的生活空间。
此外,二楼还设计有一个12’x13’的Loft,可以同时满足家庭成员的不同需求。
(点击图片,加入海房交流群)
户型二:
5房5.5卫、室内3983平方尺、2车库
(点击图片,加入海房交流群)
二号户型主打宽敞明亮的设计风格,门廊处设有中庭,与楼梯旁的高挑空间相呼应,将更多室外的明亮光线带进屋内,再配合客厅处的超长落地玻璃门,使得室内的整体采光非常好,营造出大气、通透、宽敞的生活氛围。
二号户型的每个房间都配有专属的浴室和衣帽间,确保了每位家庭成员都拥有独立私密的生活空间。一楼门厅处设计了一个小开间,二楼设计有Bonus Room,均可用于改造成卧室、工作室或娱乐室。
另外,该户型的车库内还设有一个9’x15’的储物空间。
二号户型大气通透,功能房及储物空间多,是喜爱明亮宽敞,家庭成员众多的买家的理想选择。
(点击图片,加入海房交流群)
户型三:
5房 5.5卫、室内 4097 平方尺、2车库
(点击图片,加入海房交流群)
三号户型是这个楼盘面积较大的户型,门厅处的弧形楼梯设计营造出更加奢华的室内氛围。
一楼走廊处设计了一个小开间,二楼设计有Bonus Room,均可用于改造成卧室、工作室或娱乐室。
该户型的每个房间都配有专属的浴室和衣帽间,确保了每位家庭成员都拥有独立私密的生活空间。
二楼主卧室带有一个12’x19’的Retreat Room(休息室)以及超大面积的步入式衣帽间,相信会受到追求生活品质的买家青睐。另外,该户型也在车库内设计了额外的储物空间,非常具有实用性。
(点击图片,加入海房交流群)
Crescendo
(点击图片,加入海房交流群)
作为Cadence Park里户型面积较大的一个盘,给人的感觉就是豪华、大气!超高跳空,旋转楼梯,都是吸金利器!售价180万起。
尔湾内的新盘只此有11尺/10尺层高的楼盘
4-5房间经典配置
占地大6000-9000尺,在尓湾地区相当难得!
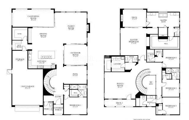
户型一:4房 4.5卫、室内 4109 平方尺、2车库
(点击图片,加入海房交流群)
(点击图片,加入海房交流群)
户型二:4房5卫、室内 4456 平方尺、2车库
(点击图片,加入海房交流群)
(点击图片,加入海房交流群)
户型三:4房 4.5卫、室内 3740平方尺、2车库
(点击图片,加入海房交流群)
(点击图片,加入海房交流群)
(点击图片,加入海房交流群)
Marcato
(点击图片,加入海房交流群)
Marcato在整个Cadence Park楼盘中,属于价位适中,面积也适中的户型,深受广大购房者喜欢。售价从140万起。
空间紧凑不浪费
价格适中,升值空间大
户型一:4房 4.5卫、室内 2891 平方尺、2车库
三个外观都是比较现代风格的外观,标准式四房紧凑型户型,一层是客卫,餐厅,客厅,厨房,套房和加州阳光房,二层两个套房,主人房和大家喜爱的家庭厅,可作为书房,办公区域,休闲区等。
(点击图片,加入海房交流群)
(点击图片,加入海房交流群)
户型二:4房 4 卫、室内 3232 平方尺、2车库
美式小屋的外观,带有阳台,进门挑空,厨房的餐台也是一个特色。一层是老人房,客厅餐厅及厨房,一楼的卫生间为共用卫生间。二层是两套房,主人房和比较大的家庭厅。
(点击图片,加入海房交流群)
(点击图片,加入海房交流群)
户型三:4房 4.5卫、室内 3575平方尺、2车库
户型外观面宽,超大加州阳光房并带有阳台,超大的客厅和主人房。一层是套房,客卫,客厅,餐厅,厨房和加州阳光房。二层两套房,主人房并带有休息区域和家庭厅。
(点击图片,加入海房交流群)
(点击图片,加入海房交流群)


































